SHOP IN HIGH TRAFFIC POSITION

for rent
Nole - via Torino, 181
850 €
CLICCA SULLA FOTO PER APRIRE LA GALLERIA
Commercial Premises / Showrooms
Category
130
m2
2
Locals
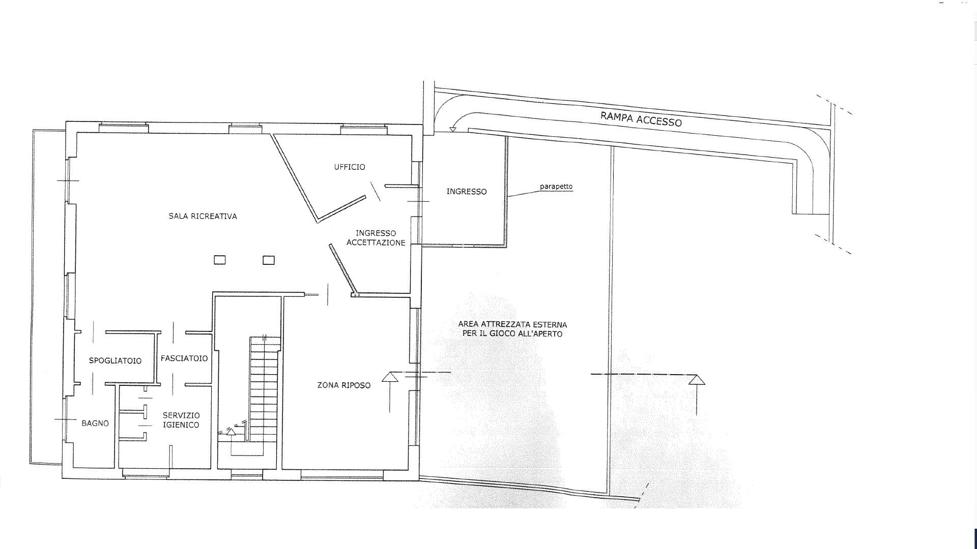
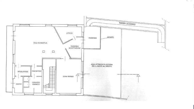
Floorplans
Virtual tour
Description
In Nole, on the provincial road that connects Cirié to Lanzo, and then in a position of great passage, we rent a commercial space consisting of a large open space, another room and two services.

Large roof/porch facing street and private courtyard.
Primal Features
Code:
A001414
City:
Nole
Category:
Commercial Premises / Showrooms
Locals:
2
Sqm:
130
Floor:
Ground floor
Energetic class:
E
85.27 kWh/m³a
Orientation:
North West South East
Free Sides:
4
Furniture:
Not Furnished
Heating:
No
Heating Type:
Heat Pump
Type of heating system:
Air heating
Energy source:
Elettric
Cooling:
Split
Fixtures:
Metal double glazed
Doors:
Discreet
Floors:
Laminate
Caution:
Two Months
Type of Contract:
6+6 Years
Number of windows:
Two
Access for disabled:
No barrier
Registr. Type:
Traditional
Accessories
Electric gate
Double Glazing
Passing Car
Pedestrian Crossing
Electric shutters
Map
Virtual tour
Floorplans
Information request
Send
Cookie preference