TRILOCALE CON POSTO AUTO

for sale
Mathi - via Don Bosco, 12
53,000 €
CLICCA SULLA FOTO PER APRIRE LA GALLERIA
2 bedroom apartment
Category
60
m2
3
Locals
2
Bedrooms
1
Bathrooms
1
Car places
Floorplans
Virtual tour
Description
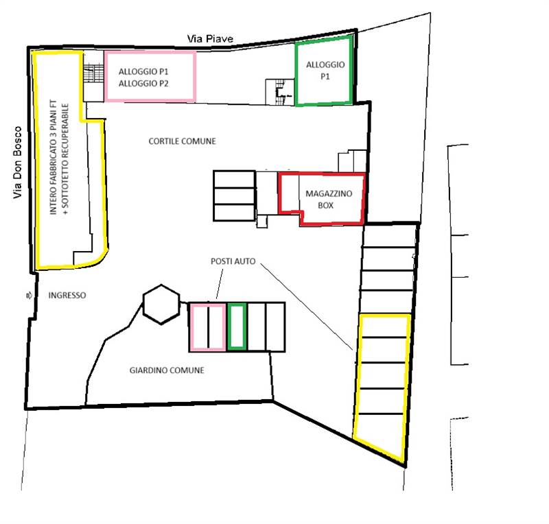
In Mathi, in a residential complex dating back to the first half of the 20th century, renovated in the common areas, roof and facade and composed of a few residential units with courtyard and green condominium areas, we offer for sale a spacious and functional apartment, perfect for those looking for comfortable environments and with minimal condominium fees.

The apartment is on the first floor.
The entrance opens onto a large hallway, which leads to the other rooms of the house such as the eat-in kitchen, two bright bedrooms, bathroom with window and a large closet.
In the basement we find the relevant cellar, useful as an additional storage space, and outside the property a reserved parking space completes.

The location is quiet but convenient to the main services of the town and connections to Turin and its surroundings.
Thanks to the minimal condominium fees and the distribution of space, the property is suitable both as a main residence and as an investment.
Primal Features
Code:
V002486
City:
Mathi
Category:
2 bedroom apartment
Locals:
3
Bedrooms:
2
Bathrooms:
1
Sqm:
60
Car places:
1
Balconies:
1
Floor:
1
Year:
1900
Renovation year:
1990
Energetic class:
F
Property Conditions:
Good
Rank:
Medium
Position:
Inner City
View:
Garden View
Orientation:
South North
Free Sides:
2
Type living:
Living room
Kitchen:
Eat-In Kitchen
Heating:
Independent
Heating Type:
Condensing boiler
Type of heating system:
Radiator heating
Energy source:
Natural Gas Heating
Hot Water:
Independent
Fixtures:
Wooden double glazed
Doors:
Good
Blind:
Wood Blinds
Accessories
Double Glazing
Map
Virtual tour
We also recommend
for Sale
2 bedroom apartment for sale in Mathi
2 bedroom apartment for sale in Mathi
65,000 €
2 bedroom apartment
Mathi
78
m2
3
Locals
2
Bedrooms
1
Bathrooms
Information request
Send
Cookie preference