Semi Detached House for sale in Lanzo Torinese

for sale
Lanzo Torinese - Via Torino, 22
61,500 €
CLICCA SULLA FOTO PER APRIRE LA GALLERIA
Semi Detached House
Category
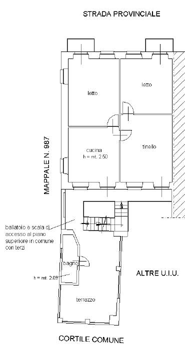
120
m2
4
Locals
4
Bedrooms
1
Bathrooms
1
Garages
Floorplans
Virtual tour
Primal Features
Code:
V002556
City:
Lanzo Torinese
Category:
Semi Detached House
Locals:
4
Bedrooms:
4
Bathrooms:
1
Sqm:
120
Garages:
1
Sqm garage:
24
Terraces:
1
sqm Terrace:
26
Energetic class:
G
283.12 kWh/m²a
Property Conditions:
Old
Rank:
Medium
Position:
Hill
Orientation:
North West South
Free Sides:
3
Heating:
Independent
Heating Type:
Fan
Type of heating system:
Other
Energy source:
Gas
Hot Water:
Independent
Fixtures:
Wooden double glazed
Doors:
Good
Blind:
Wood Blinds
Floors Living Room:
Ceramic
Floors Bedrooms:
Ceramic
Floors Kitchen:
Ceramic
Floors Bathroom:
Ceramic
Access for disabled:
No
Apartments:
Two
Accessories
Cupboard
Fireplace
Map
Virtual tour
We also recommend
for Sale
Semi Detached House for sale in Lanzo Torinese
Semi Detached House for sale in Lanzo Torinese
61,500 €
Semi Detached House
Lanzo Torinese
120
m2
4
Locals
4
Bedrooms
1
Bathrooms
1
Garages
for Sale
Semi Detached House for sale in Lanzo Torinese
Semi Detached House for sale in Lanzo Torinese
123,000 €
Semi Detached House
Lanzo Torinese
240
m2
8
Locals
6
Bedrooms
2
Bathrooms
2
Garages
for Sale
Semi Detached House for sale in Lanzo Torinese
Semi Detached House for sale in Lanzo Torinese
232,000 €
Semi Detached House
Lanzo Torinese
213
m2
5
Locals
3
Bedrooms
2
Bathrooms
1
Garages
Information request
Send
Cookie preference