Town House for sale in Balangero

for sale
Balangero - via Sant'Anna, 50
98,000 €
CLICCA SULLA FOTO PER APRIRE LA GALLERIA
Town House
Category
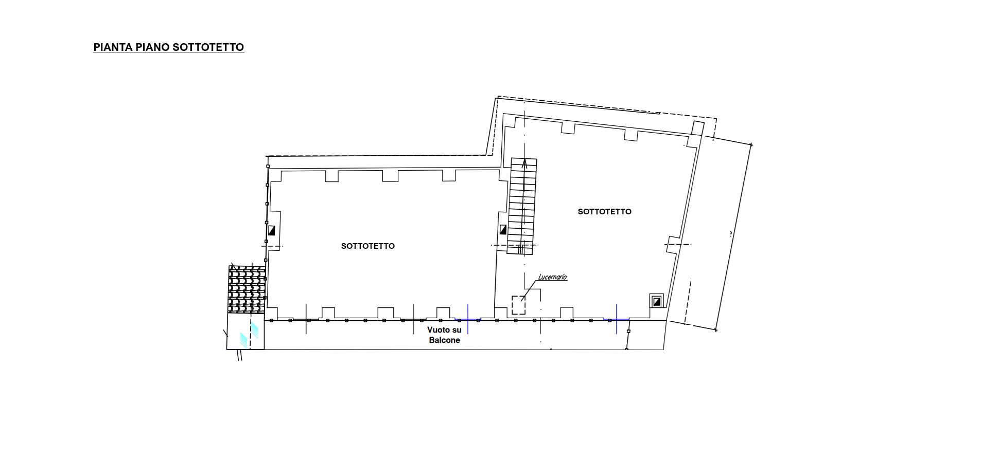
248
m2
6
Locals
4
Bedrooms
2
Bathrooms
1
Garages
Floorplans
Virtual tour
Primal Features
Code:
V002576
City:
Balangero
Category:
Town House
Locals:
6
Bedrooms:
4
Bathrooms:
2
Sqm:
248
Garages:
1
Sqm garage:
20
Balconies:
1
Floor:
Ground floor
Year:
1900
Renovation year:
1980
Energetic class:
G
413.22 kWh/m²a
Property Conditions:
Good
Rank:
Medium
Position:
Inner City
View:
Open View
Orientation:
North West South East
Free Sides:
4
Garden:
Cortile
Furniture:
Not Furnished
Type living:
Living room
Kitchen:
Eat-In Kitchen
Heating:
Independent
Heating Type:
Boiler
Type of heating system:
Radiator heating
Energy source:
Natural Gas Heating
Hot Water:
Independent
Cooling:
No
Fixtures:
Aluminium Double Glazing
Doors:
Good
Blind:
PVC Blinds
Floors Living Room:
Ceramic
Floors Bedrooms:
Cement
Floors Kitchen:
Cement
Floors Bathroom:
Cement
Accessories
Double Glazing
Armored door
Map
Virtual tour
We also recommend
for Sale
Town House for sale in Balangero
Town House for sale in Balangero
65,000 €
Town House
Balangero
69
m2
3
Locals
2
Bedrooms
1
Bathrooms
Information request
Send
Cookie preference