NEGOZIO IN POSIZIONE DI GRANDE PASSAGGIO

In affitto
Nole - via Torino, 181
850 €
CLICCA SULLA FOTO PER APRIRE LA GALLERIA
Negozio
Categoria
130
m2
2
Locali
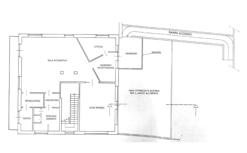
Planimetrie
Descrizione
A Nole, sulla provinciale che collega Cirié a Lanzo, e quindi in posizione di grande passaggio, AFFITTIAMO un locale commerciale composto da un ampio vano open space, un altro vano e due servizi.

Ampio cortile privato.
Predisposizione antifurto e climatizzazione.
Caratteristiche principali
Codice:
A001414
Città:
Nole
Categoria:
Negozio
Locali:
2
Mq:
130
Piano:
Terra
Classe energetica:
E
85,27 kWh/m³a
Orientamento:
Nord Ovest Sud Est
Lati Liberi:
4
Arredi:
Non Arredato
Riscaldamento:
No
Tipo Riscaldam.:
Pompa di Calore
Tipo Impianto:
Aria
Fonte Energetica:
Elettrico
Raffrescamento:
Split
Infissi:
Metallo Doppio Vetro
Serramenti:
Discreto
Pavimento:
Laminato
Cauzione:
Due Mesi
Tipo Contratto:
6+6 Anni
Numero Vetrine:
Due
Accesso Disabili:
Nessuna Barriera
Tipo Registr.:
Tradizionale
Accessori
Cancello Elettrico
Doppi Vetri
Passaggio Automobilistico
Passaggio Pedonale
Tapparelle Elettriche
Mappa
Planimetrie
Richiedi informazioni
Invia
Cookie preference