TRILOCALE CON BOX AUTO

In vendita
Lanzo Torinese - via Vittorio Emanuele II, 3
72.000 €
CLICCA SULLA FOTO PER APRIRE LA GALLERIA
3 locali
Categoria
73
m2
3
Locali
2
Camere
1
Box
Planimetrie
Virtual tour
Descrizione
Nella centralissima via Vittorio Emanuele II, a Lanzo Torinese, proponiamo in vendita un ampio trilocale, parzialmente ristrutturato, posto al primo piano fuori terra.

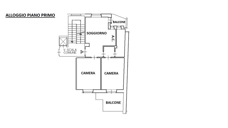
L'appartamento è composto da soggiorno con cucina a vista, due grandi camere da letto, bagno con finestra e due balconi.
Al piano terra la cantina e il box auto completano la proprietà.

L'appartamento è stato ristrutturato circa 10 anni fa e, più precisamente, sono stati rifatti l'impianto termoidraulico, l'impianto elettrico e la pavimentazione in tutto l'immobile.

La palazzina dotata di ascensore è in posizione comoda ai servizi principali e alla stazione ferroviaria del paese e questo rende l'immobile adatto anche per uso investimento.
Caratteristiche principali
Codice:
V002431
Città:
Lanzo Torinese
Categoria:
3 locali
Spese condominiali:
1.740 € / anno
Locali:
3
Camere:
2
Mq:
73
Box:
1
Mq Box:
12
Balconi:
2
Mq Balcone:
8
Piano:
1
Anno ristrutturazione:
2016
Classe energetica:
F
247,65 kWh/m²a
Stato Immobile:
Buono
Grado:
Medio
Posizione:
Centro Storico
Panorama:
Vista Monti
Lati Liberi:
2
Tipo Soggiorno:
Soggiorno
Tipo Cucina:
A Vista
Riscaldamento:
Centralizzato
Tipo Impianto:
Radiatori
Infissi:
Legno
Serramenti:
Da Sostituire
Persiana:
Tapparella Legno
Mappa
Virtual tour
Planimetrie
Richiedi informazioni
Invia
Cookie preference