CASA INDIPENDENTE CON GIARDINO

In vendita
San Maurizio Canavese - via Domenico Valle, 2
180.000 €
CLICCA SULLA FOTO PER APRIRE LA GALLERIA
Casa singola
Categoria
165
m2
6
Locali
2
Camere
2
Bagni
1
Box
Planimetrie
Virtual tour
Descrizione
Nelle immediate vicinanze del Centro Storico e della Stazione ferroviaria proponiamo in vendita una casa indipendente con giardino privato.

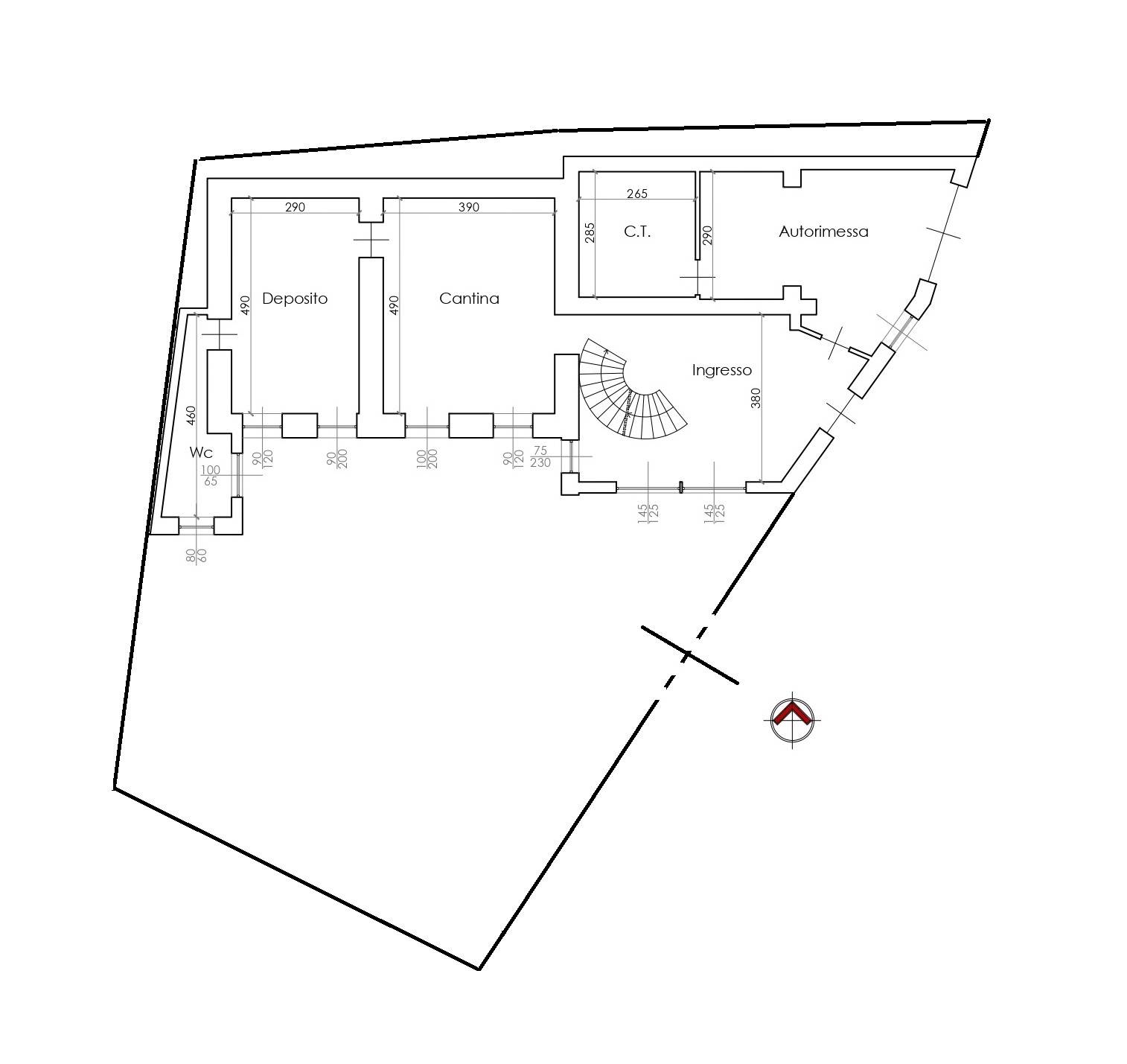
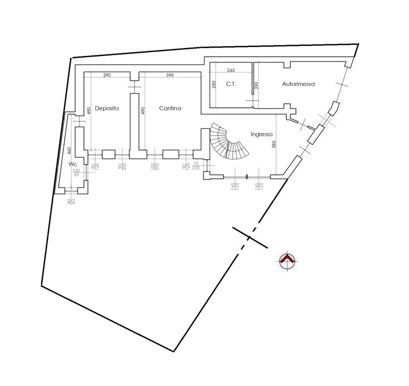
L'abitazione si sviluppa su due piani e precisamente al piano terreno si trovano un ampio ingresso con un salottino, due vani attualmente adibiti a laboratorio/negozio utilizzabili come locali accessori, il locale caldaia ed il box auto.

Dall'ingresso una particolare scala elicoidale porta al primo piano composto dal soggiorno con caminetto a legna, cucinotta, due camere, un servizio e un balcone.

Giardino privato di circa 120 mq. sul lato sud ideale per trascorrere momenti di relax all’aperto.
Caratteristiche principali
Codice:
V002498
Città:
San Maurizio Canavese
Categoria:
Casa singola
Locali:
6
Camere:
2
Bagni:
2
Mq:
165
Box:
1
Mq Box:
18
Mq Giardino:
116
Balconi:
1
Mq Balcone:
8
Classe energetica:
G
590,78 kWh/m²a
Stato Immobile:
Buono
Grado:
Medio
Posizione:
Centro
Panorama:
Vista Aperta
Orientamento:
Nord Ovest Sud Est
Lati Liberi:
4
Giardino:
Privato
Tipo Soggiorno:
Soggiorno
Tipo Cucina:
Semi Abitabile
Riscaldamento:
Autonomo
Tipo Riscaldam.:
Caldaia
Tipo Impianto:
Radiatori
Fonte Energetica:
Metano
Acqua Calda:
Autonoma
Raffrescamento:
Split
Infissi:
Legno
Serramenti:
Buono
Persiana:
Oscurante Legno
Pavim. Giorno:
Laminato
Pavim. Notte:
Laminato
Pavim. Cucina:
Laminato
Pavim. Bagno:
Ceramica
Accesso Disabili:
No
Accesso interno disabili:
Non accessibile
Mappa
Virtual tour
Richiedi informazioni
Invia
Cookie preference