PORZIONE DI BIFAMIGLIARE CON TERRENO

In vendita
Ciriè - via Verdi, 3
298.000 €
CLICCA SULLA FOTO PER APRIRE LA GALLERIA
Porzione di Casa
Categoria
170
m2
5
Locali
4
Camere
3
Bagni
1
Box
Planimetrie
Virtual tour
Descrizione
OPEN HOUSE GIOVEDI' 23 OTTOBRE DALLE ORE 16:00 ALLE ORE 18:00!

Immagina di vivere in una casa che unisce l’indipendenza di una porzione libera su tre lati al calore di ambienti pensati per accoglierti ogni giorno.

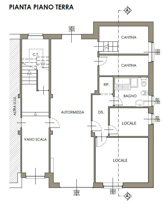
Al piano terra troviamo una zona intima e versatile che può diventare una comoda dependance per ospiti, un luogo di lavoro o una seconda abitazione autonoma per genitori o figli, composta da un locale cucina, camera, disimpegno, bagno, ripostiglio e due cantine.
I locali sono abitabili allo stato semi originale, con permesso approvato per una eventuale ristrutturazione e ampliamento residenziale.
A concludere il piano un'autorimessa di generosa metrature in grado di ospitare due autovetture di medie/grandi dimensioni.

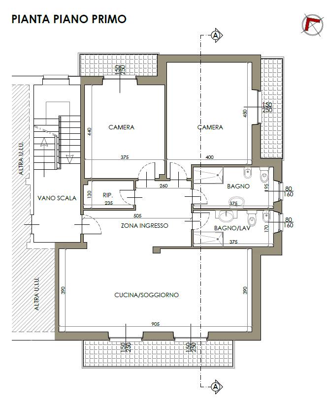
Salendo al primo piano si entra in una dimensione tutta nuova: l'abitazione completamente ristrutturata nel 2024, ti accoglie con un grande soggiorno open space, inondato di luce e arricchito da una cucina a vista dove condividere momenti di convivialità. Due camere da letto ti garantiscono quiete e privacy, mentre i due bagni con doccia offrono praticità e comfort.
I tre balconi con tenda solare regalano respiro, aria e luce, portando la bellezza degli spazi esterni anche dentro casa.

Al secondo piano sottotetto provvisto di isolamento termico installato nel 2025, grazie al quale si vanno a ridurre le dispersioni di calore in inverno e il surriscaldamento d'estate.

Circostante all'immobile il giardino e l’orto offrono uno spazio verde completamente in piano dove rilassarsi, cenare all’aperto o coltivare le proprie passioni.

La casa è dotata di tutti i comfort che fanno la differenza nella vita di tutti i giorni: riscaldamento autonomo con caldaia a condensazione a metano,
impianto di aria condizionata.


Un’abitazione pronta da vivere, che unisce spazi pratici e comfort moderni in zona residenziale, poco distante dal centro e dai servizi.
Caratteristiche principali
Codice:
V002502
Città:
Ciriè
Categoria:
Porzione di Casa
Locali:
5
Camere:
4
Bagni:
3
Mq:
170
Box:
1
Mq Box:
46
Mq Giardino:
400
Balconi:
3
Mq Balcone:
14
Anno ristrutturazione:
2025
Classe energetica:
E
321,82 kWh/m²a
Stato Immobile:
Ristrutturato
Grado:
Medio
Lati Liberi:
3
Giardino:
Privato
Tipo Cucina:
Abitabile
Riscaldamento:
Autonomo
Tipo Riscaldam.:
Caldaia a Condensazione
Tipo Impianto:
Radiatori
Fonte Energetica:
Metano
Acqua Calda:
Autonoma
Infissi:
PVC Triplo Vetro
Serramenti:
Nuovo
Persiana:
Tapparella PVC
Pavim. Giorno:
Gres Porcellanato
Pavim. Notte:
Gres Porcellanato
Pavim. Cucina:
Gres Porcellanato
Pavim. Bagno:
Gres Porcellanato
Accessori
Aria Condizionata
Porta Blindata
Ripostiglio
Tripli Vetri
Mappa
Virtual tour
Ti consigliamo anche
In Vendita
PORZIONE DI CASA SU DUE LIVELLI
PORZIONE DI CASA SU DUE LIVELLI
145.000 €
Porzione di Casa
Ciriè
227
m2
6
Locali
3
Camere
2
Bagni
1
Box
In Vendita
APPARTAMENTO CON TERRAZZO E GIARDINO
APPARTAMENTO CON TERRAZZO E GIARDINO
173.000 €
3 locali
Ciriè
108
m2
3
Locali
2
Camere
1
Bagni
1
Box
In Vendita
PORZIONE DI BIFAMILIARE
PORZIONE DI BIFAMILIARE
245.000 €
Porzione Villa
Ciriè
150
m2
7
Locali
3
Camere
1
Bagni
In Vendita
PORZIONE DI CASA SU 3  LIVELLI
PORZIONE DI CASA SU 3 LIVELLI
220.000 €
4 o più locali
Ciriè
175
m2
8,5
Locali
5
Camere
3
Bagni
Richiedi informazioni
Invia
Cookie preference