ATTICO PANORAMICO

In vendita
Borgaro Torinese - via Pirandello , 5
250.000 €
CLICCA SULLA FOTO PER APRIRE LA GALLERIA
4 o più locali
Categoria
160
m2
6
Locali
4
Camere
2
Bagni
Planimetrie
Virtual tour
Descrizione
Borgaro - In zona comoda e ben servita a 10 km da Torino, proponiamo in vendita in palazzina di recente costruzione, appartamento su due livelli di ampie dimensioni.
Al piano secondo si entra in un'ampia zona giorno composta di salone doppio con uscita su terrazzino, cucina abitabile, una camera, bagno e ripostiglio, balcone con locale caldaia;
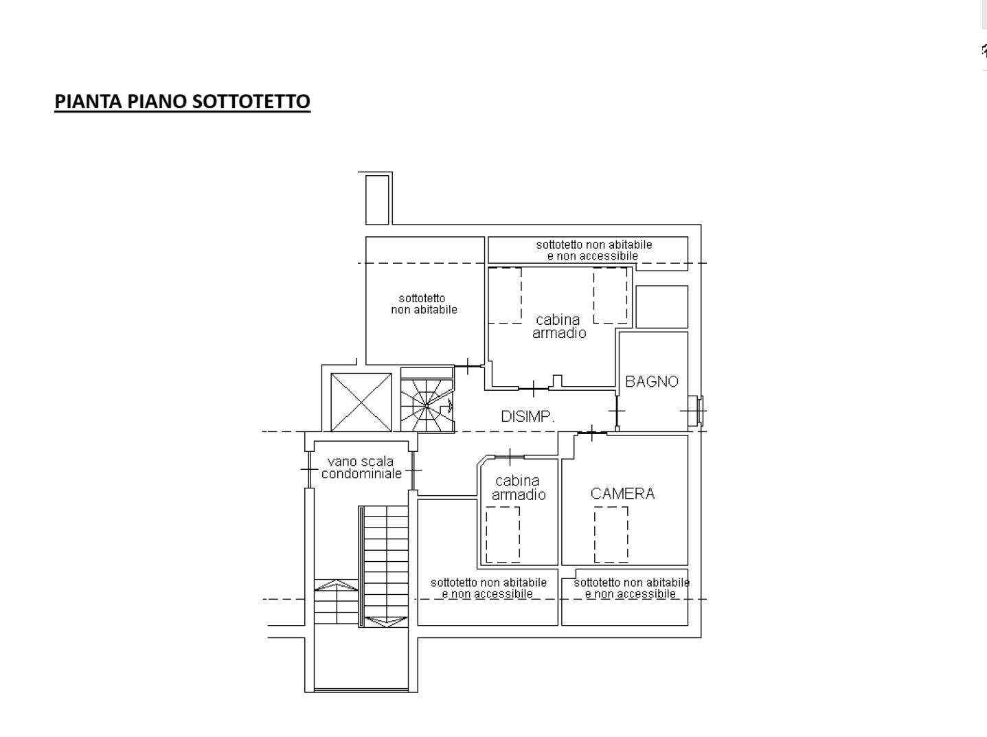
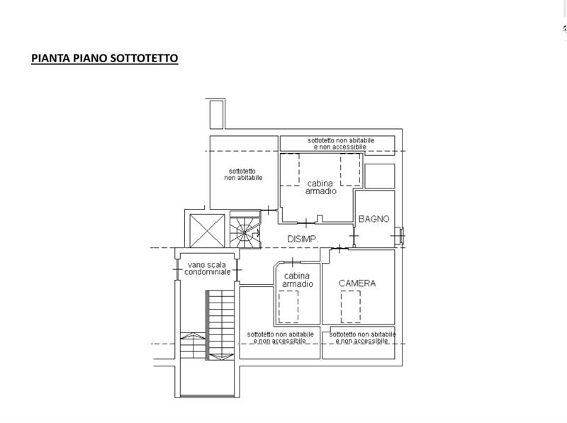
al sovrastante piano mansardato, collegato tramite una comoda scala in legno situata nel soggiorno, troviamo la zona notte composta di disimpegno, due ampie camere, bagno e cabina armadio.

Completano la proprietà una cantina al piano interrato

L'impianto di riscaldamento è dotato di caldaia autonoma a condensazione appena sostituita.
Condizionatori per aria calda e fredda.

Ottima soluzione per famiglie numerose o per chi necessita di grandi spazi.

LIBERO IN AUTUNNO 2026
Caratteristiche principali
Codice:
V002510
Città:
Borgaro Torinese
Categoria:
4 o più locali
Spese condominiali:
1.600 € / anno
Locali:
6
Camere:
4
Bagni:
2
Mq:
160
Balconi:
2
Piano:
2
Anno:
2002
Classe energetica:
E
177,8
Stato Immobile:
Buono
Grado:
Medio
Panorama:
Vista Aperta
Lati Liberi:
2
Tipo Soggiorno:
Salone
Tipo Cucina:
Abitabile
Riscaldamento:
Autonomo
Tipo Riscaldam.:
Caldaia a Condensazione
Tipo Impianto:
Radiatori
Fonte Energetica:
Metano
Acqua Calda:
Autonoma
Raffrescamento:
Split
Infissi:
PVC
Serramenti:
Buono
Pavim. Giorno:
Ceramica
Pavim. Notte:
Parquet
Pavim. Cucina:
Ceramica
Pavim. Bagno:
Ceramica
Accesso Disabili:
Nessuna Barriera
Accesso interno disabili:
Pieno accesso
Accessori
Antifurto
Aria Condizionata
Armadio a Muro
Ascensore
Bagno Handicap
Cancello Elettrico
Doppi Vetri
Porta Blindata
Video Citofono
Zanzariere
Mappa
Virtual tour
Ti consigliamo anche
In Vendita
SUPERATTICO CON SPLENDIDI TERRAZZI
SUPERATTICO CON SPLENDIDI TERRAZZI
365.000 €
4 o più locali
Borgaro Torinese
160
m2
5
Locali
Richiedi informazioni
Invia
Cookie preference