CASCINA D'EPOCA CON CORTE INTERNA

In vendita
San Francesco al Campo - via Ghetto, 18
150.000 €
CLICCA SULLA FOTO PER APRIRE LA GALLERIA
Rustico/Casale
Categoria
440
m2
5
Locali
5
Camere
1
Bagni
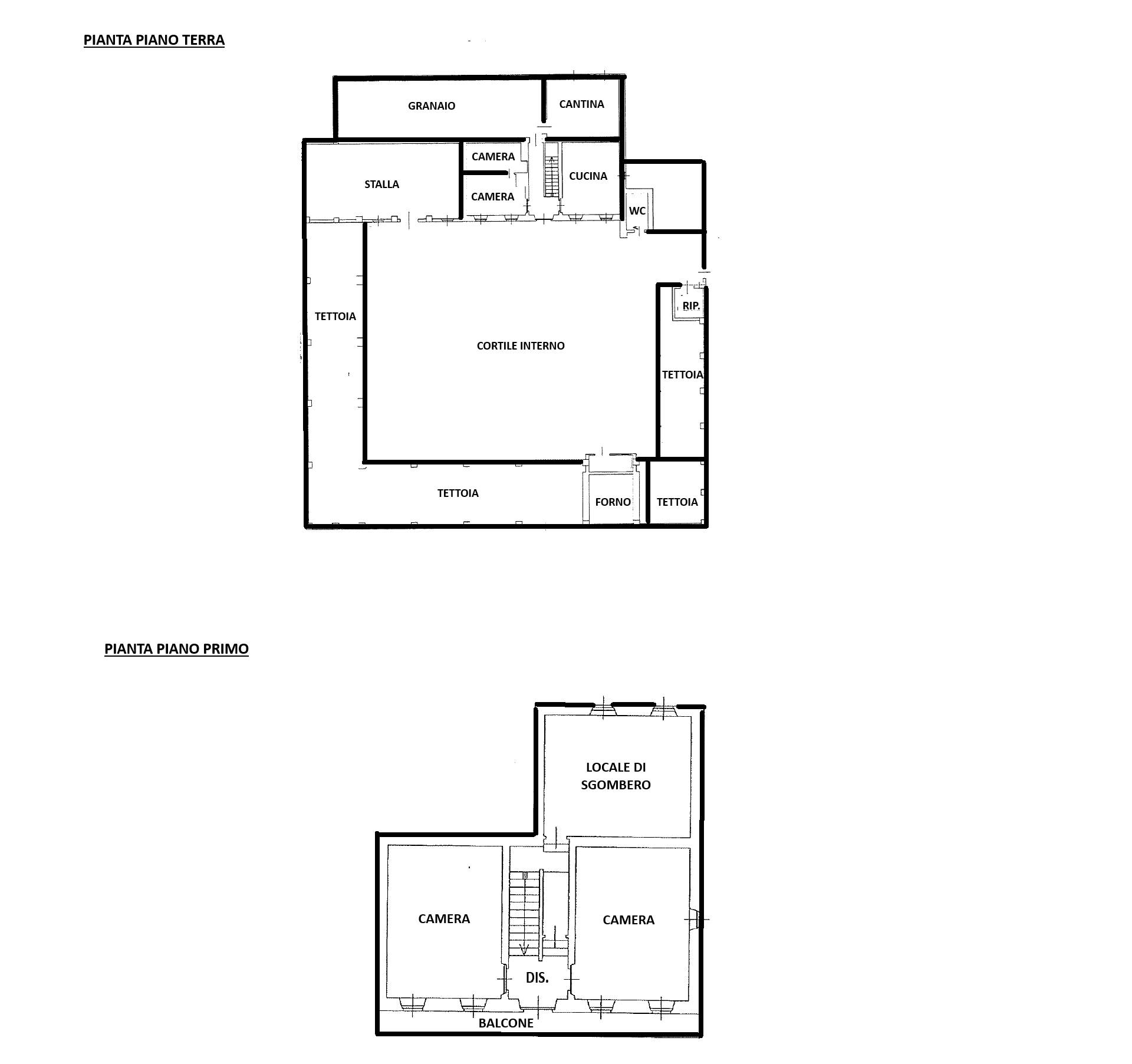
Planimetrie
Descrizione
Immersa nella quiete della campagna di San Francesco al Campo proponiamo in vendita un'affascinante cascina d'epoca disposta su due livelli, con ampi spazi interni ed esterni ideali per chi desidera vivere nella tranquillità della campagna senza rinunciare alla comodità.

La parte abitativa si sviluppa al piano terra e comprende una cucina, due camere, bagno esterno e cantina. Attravreso un disimpegno si accede a un ex granaio di grandi dimensioni, perfetto per essere trasformato in ulteriore zona giorno o spazio hobby.
Una comoda scala interna conduce al piano primo dove si trovano due camere aggiuntive e un locale deposito.

All'interno del cortile privato si trovano inoltre:
- due ampie tettoie di circa 120 mq ciascuna, ideali come ricovero mezzi ma volendo recuperabile ai fini abitativi;
- una stalla caratteristica che conserva il fascino autentico della struttura originaria.

Immobile dal grande potenziale, adatto per famiglie numerose o per realizzare un'attività turistica/ricettiva.
Caratteristiche principali
Codice:
V002520
Città:
San Francesco al Campo
Categoria:
Rustico/Casale
Locali:
5
Camere:
5
Bagni:
1
Mq:
440
Mq Giardino:
420
Balconi:
1
Anno:
1894
Classe energetica:
G
Stato Immobile:
Da Ristrutturare
Grado:
Medio
Posizione:
Campagna
Orientamento:
Nord Ovest Sud Est
Lati Liberi:
4
Giardino:
Cortile
Tipo Cucina:
Abitabile
Riscaldamento:
No
Tipo Impianto:
No
Acqua Calda:
Assente
Infissi:
Legno
Serramenti:
Da Sostituire
Persiana:
Oscurante Legno
Pavim. Giorno:
Ceramica
Pavim. Notte:
Ceramica
Pavim. Cucina:
Ceramica
Pavim. Bagno:
Ceramica
Mappa
Planimetrie
Richiedi informazioni
Invia
Cookie preference